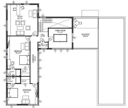
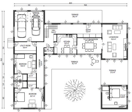
Plan example

Modern Post & Beam U-Villa, with 360 qm (3875 sqft.)
© MANN AD 2005 -2015
Architecture Our architects are planning for your individual house, taking into account the country-specific building codes. We work with the latest character and architecture programs, such as ArchiCad and for vialising with Artlantis. Our world-renowned timber constructer/designer and award winner Carsten Mann, is also a specialist in Feng Shui & Golden Cut. Constructions Post & Beam classic Post & Beam modern Framehouse Log home Log cabin Full wood wall elements Mixed wood construction
Lorem ipsum dolor Commodo velit pariature In sed adipisicing magna officia Commodo velit pariature Veniam dolor qui Nostrud nisi velit aliquip
MANN ARCHITECTURE & DESIGN